Seitenbereiche:
  • zum Inhalt [Alt+0]
  • zum Hauptmenü [Alt+1]

Hauptmenü schließen
  • Pfarrleben
  • Pfarrgemeinde
Hauptmenü ein-/ausblenden Startseite Suche ein-/ausblenden Barrierefreiheit-Einstellungen ein-/ausblenden
Barrierefreiheit Einstellungen
Schriftgröße
  • A: Schriftgröße: normal
  • A: Schriftgröße: groß
  • A: Schriftgröße: sehr groß
Kontrasteinstellungen
  • A: Standardfarben
  • A: Gelb auf Schwarz
  • A: Schwarz auf Gelb
  • A: Weiss auf Blau
  • A: Blau auf Weiss
Inhalt:

Zeitplan Abriss-Neubau

22.06.2016

Die Bauarbeiten beginnen mit den folgenden Terminen:

 

Freitag,          24. 06. 2016    Entkernen des Altbaus

Montag,         27. 06. 2016    Aufstellen des Bauzaunes

Montag,         04. 07. 2016    Abriss des Altbaus

Montag,         11. 07. 2016    Beginn Neubau.

 

Durch die Arbeiten wird es im Bereich (Kirchenplatz) zwischen Kirche und Volksschule

zu Benutzungseinschränkungen und zeitweise zu Staubbelastungen kommen.

 

Die Pfarre ersucht dafür um euer Verständnis!

 

Bitte ab Donnerstag, 23.06.2016, zur Vermeidung von ev. Schäden, den Parkplatz zw. Kirche und VS nicht mehr benutzen!

 

 

Baufreigabe

17.06.2016

Nach der Baufreigabe durch die DFK (Diözesanfinanzkammer) am 17.06.2016 starten die Abriss- und Neubauarbeiten, unter der Leitung des Architekturbüros GHT aus St. Martin, Ende Juni 2016.

 

Durch die Umlegung der Stiege zur Empore (Chor) wird diese für einige Wochen nicht benützbar.

 

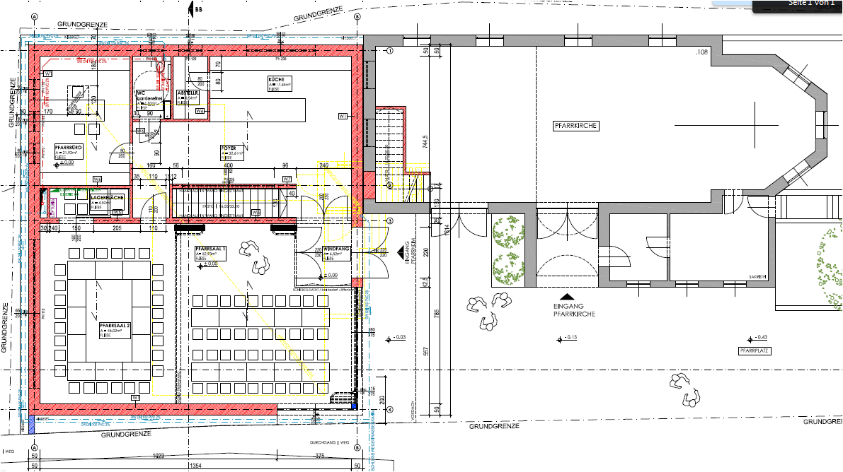
Bauplan vergrößern

 

 

Verhandlungen

Herbst 2015 bis Frühjahr 2016

Die Angebote für den Großteil des Baues werden gerade verhandelt.

Nach Abstimmung und Genehmigung durch die Diözesanfinanzkammer,

werden wir voraussichtlich im Mai 2016 mit Abriss bzw. Neubau des Pfarrheimes

unter der Leitung des Architekturbüros GHT aus St. Martin beginnen.

 

 

Altes Pfarrheim

Herbst 2015

Bild 1, Bild 2, Bild 3, Bild 4, Bild 5

 

 

  • zur ersten Seite
  • vorherige Seite
  • Seite 1
  • Seite 2
  • Seite 3
  • Seite 4
  • Seite 5
  • Seite 6

nach oben springen
  • Kontakt
    • Impressum
    • Datenschutz
Pfarre Lacken


Lacken 7
4101 Feldkirchen an der Donau
Telefon: 07232/2833
Mobil: 0676/8776-6351
pfarre.lacken@dioezese-linz.at
https://www.dioezese-linz.at/lacken

Kanzleizeiten St. Martin

 

Di     07:30 - 10:30

Do    07:30 - 11:30

Fr      07:30 - 11:30

Katholische Kirche in Oberösterreich
Diözese Linz

Herrenstraße 19
4020 Linz
Ihr Kontakt zur
Diözese Linz
anmelden
nach oben springen